Εξαιρετικό διαμέρισμα για πώληση με ένα υπνοδωμάτιο, πάρκινγκ, αποθήκη και θέα θάλασσα Μπαργιαμάγα Καλαμάτα Μεσσηνίας

Μεσσηνία, Δήμος Καλαμάτας, Μπαργιαμάγα
Πωλείται
182.000 €

Εξαιρετικό διαμέρισμα για πώληση με ένα υπνοδωμάτιο, πάρκινγκ, αποθήκη και θέα θάλασσα Μπαργιαμάγα Καλαμάτα Μεσσηνίας

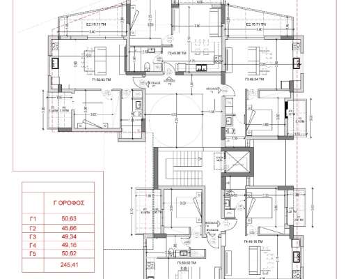
Διαμέρισμα Γ5 – 50,62 τ.μ.
Τιμή ανά τ.μ.: 3.600 € | Συνολική Τιμή: 182.000 €
Απόδοση: 4,02% – 4,35% ετησίως | Εκτιμώμενο Ενοίκιο: 610–660 €/μήνα
Διαρρύθμιση
Το Διαμέρισμα Γ5 αποτελεί το πιο προνομιακό και φωτεινό του ορόφου, με εξαιρετική εκμετάλλευση χώρου, διπλή πρόσοψη και θέα προς τη θάλασσα.
Ο αρχιτεκτονικός του σχεδιασμός εστιάζει στην άνεση, τη λειτουργικότητα και την ποιότητα κατασκευής, καθιστώντας το ιδανικό για κατοικία ή επένδυση υψηλού επιπέδου.
• Υπνοδωμάτιο με μεγάλες ντουλάπες, φωτεινό και ήσυχο.
• Μπάνιο με πολυτελή υλικά, εργονομική διάταξη και εξαερισμό.
• Ενιαίος χώρος σαλονιού – κουζίνας με μεγάλες μπαλκονόπορτες που οδηγούν σε δύο ευρύχωρα μπαλκόνια.
• Το καθιστικό διαθέτει νότιο προσανατολισμό που εξασφαλίζει φυσικό φως καθ’ όλη τη διάρκεια της ημέρας.
Παροχές – Εξοπλισμός
• Θέρμανση & ψύξη με κλιματιστικά inverter.
• Αναμονή για ηλιακό θερμοσίφωνα.
• Ενεργειακά κουφώματα αλουμινίου με διπλά θερμομονωτικά τζάμια.
• Ιδιόκτητο parking και αποθήκη στο υπόγειο του κτηρίου.
• Ανελκυστήρας τελευταίας τεχνολογίας (ΑΜΕΑ).
• Ενεργειακή απόδοση υψηλής κατηγορίας (χαμηλή κατανάλωση ρεύματος).
Τοποθεσία – Στρατηγικό Πλεονέκτημα
Το Γ5 βρίσκεται στην καρδιά της παραλιακής ζώνης της Καλαμάτας, σε ήσυχο δρόμο με εξαιρετική πρόσβαση:
• 5 λεπτά με τα πόδια από την παραλία Καλαμάτας.
• 7 λεπτά με αυτοκίνητο από το Νοσοκομείο Καλαμάτας.
• 3 λεπτά από Super Market και καθημερινές εξυπηρετήσεις.
• 15 λεπτά από το Αεροδρόμιο Καλαμάτας.
• 45 λεπτά από το Costa Navarino Golf Resort.
Η περιοχή χαρακτηρίζεται από υψηλή ζήτηση και συνεχή ανάπτυξη, καθιστώντας την ιδανική για επενδυτική αγορά ή εξοχική χρήση.
Απόδοση – Επενδυτικό Όφελος
• Εκτιμώμενο μηνιαίο ενοίκιο: 610–660 €
• Ετήσιο εισόδημα: 7.320–7.920 €
• Απόδοση: 4,02% – 4,35% ετησίως (μεικτή)
Επένδυση που συνδυάζει σταθερό εισόδημα με ασφαλή υπεραξία στην αγορά της Καλαμάτας.
Κορυφαία Πλεονεκτήματα
• Διαμπερής κατοικία με φυσικό φωτισμό και θέα.
• Parking & αποθήκη περιλαμβάνονται στην τιμή.
• Μοντέρνα αρχιτεκτονική, ανώτερη ποιότητα κατασκευής.
• Εξαιρετική επιλογή για Airbnb, long-term rental ή μόνιμη κατοικία.
• Υψηλή μεταπωλητική αξία σε περιοχή που αναπτύσσεται ραγδαία.

Είδος
Διαμέρισμα δυάρι
Τ.μ.
51
Περιοχή
Μπαργιαμάγα
Χαρακτηριστικά
  • Κωδικός ακινήτου:
    1470
  • Είδος:
    Διαμέρισμα δυάρι
  • Εμβαδόν:
    51μ2
  • Τιμή:
    182.000 €
  • Περιοχή:
    Μεσσηνία, Δήμος Καλαμάτας, Μπαργιαμάγα
  • Δρόμος:
    Άσφαλτος
  • Ενεργειακή κλάση:
    Α+
  • Θέσεις στάθμευσης:
    1
  • Μπαλκόνια:
    19 ΤΜ
  • Μπάνια:
    1
  • Όροφος:
    3
  • Υπνοδωμάτια:
    1
  • Αποθήκη
  • Αυτόνομη θέρμανση
  • Βεράντα
  • Γωνιακό
  • Διαμπερές
  • Διπλά τζάμια
  • Δορυφορική κεραία
  • Ηλεκτρικός θερμοσ.
  • Θέα
  • Κλιματισμός
  • Κοντά σε super market
  • Κοντά σε παραλία
  • Κοντά σε στάση λεωφ.
  • Νεόδμητο
  • Πάρκινγκ
  • Πάτωμα πλακάκι
  • Πολυτελής κατοικία
  • Πόρτα ασφαλείας
  • Πρόσβαση εύκολη
  • Πρόσοψη
  • Πρόσοψη σε άσφαλτο
  • Ράμπα αναπήρων
  • Σίτες
  • Υπό κατασκευή
  • Φωτεινό

Σας ενδιαφέρει αυτό το ακίνητο; ή κάντε την προσφορά σας επώνυμα στην τιμή που θέλετε!

Για περισσότερες πληροφορίες καλέστε τώρα στο 2102205676 ή στείλτε τα στοιχεία σας συμπληρώνοντας την παρακάτω φόρμα και πατήστε το μπλέ κουμπί "Αποστολή". Θα επικοινωνήσουμε μαζί σας σύντομα.

Ενδιαφέρομαι να μου υποδείξετε αυτό το ακίνητο
Εντολή Υπόδειξης Ακινήτου
×

Το παρόν email αποτελεί και εντολή υπόδειξης αγοράς του ακινήτου που με ενδιαφέρει και που για πρώτη φορά μου υποδεικνύετε από εσάς το μεσιτικό γραφείο "RE1" και ουδέποτε μου το έχει δείξει κάποιος άλλος. Σε περίπτωση αγοράς στο όνομα μου ή σε οποιοδήποτε μέλος της οικογενείας μου ή στο όνομα συνεργάτη ή συνεταίρου μου ή από εταιρεία στην οποία είμαι μέλος και αφορά το παραπάνω ακίνητο στο σύνολο του ή τμήματος αυτού, είμαι υποχρεωμένος να καταβάλλω τη μεσιτική αμοιβή 2,48% συμπεριλαμβανόμενου ΦΠΑ, επι τις αναγραφόμενης τιμής την οποία θεωρώ εύλογη και όχι υπερβολική και παραιτούμαι από το δικαίωμα του άρθρου 707 Α.Κ. να ζητήσω μείωση από το δικαστήριο, και θα καταβάλω την ημέρα του συμβολαίου. Επίσης αναγνωρίζω και αποδέχομαι ότι η εντολή είναι απρόθεσμη και το παραπάνω μεσιτικό γραφείο μπορεί να ενεργήσει και για λογαριασμό του αντισυμβαλλόμενου του.

Δηλώνω επίσης ότι έχω λάβει γνώσει ότι ο εντολοδόχος μου τηρεί βάση του ευρωπαϊκού κανονισμού 679/2016 τα προσωπικά μου στοιχεία και συναινώ στην με οποιαδήποτε τρόπο επικοινωνία μεταξύ μας. Το μεσιτικό γραφείο «RE1» δε φέρει καμία ευθύνη για οτιδήποτε συμβεί στο μέλλον μετά την αγορά σε ένα από τα προαναφερόμενα ακίνητα. Συμφωνείται από τα συμβαλλόμενα μέρη, ότι για την επίλυση κάθε διαφοράς που τυχόν προκύψει από την ερμηνεία ή κατά την εκτέλεση της παρούσας συμβάσεως, είναι αρμόδια τα Δικαστήρια του Πρωτοδικείου Ηρακλείου Κρήτης.

Η παρούσα εντολή ισχύει και με (e-mail ηλεκτρονικό ταχυδρομείο) και παρέλαβα στο e-mail μου αντίγραφο της εντολής μου αυτής.

Υπογραφή
Καθαρισμός